


Available info
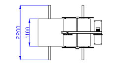
- Table length = cm. 110
- Table width from the square support to the blade = cm. 100
- Table width from the blade to the external platform = cm. 100
- Max height of the block = cm. 100
- Power supply 380 Volt 50 Hz (when not differently mentioned)
- Power consumption 2 KW approx
- Advancement system for the square, with direct reader of measurement and disc brake
- Drag-sharpener group for double-way cutting with helicoidal blade
- Blade-supporting rubberized flywheels (vulcanized).